top of page

Create Your First Project

Start adding your projects to your portfolio. Click on "Manage Projects" to get started

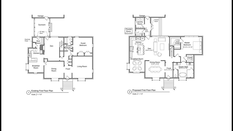
Edwards Renovation

WHERE

Memphis

WHEN

2020-2024

WHAT

Residential Rennovation

BE IN 
TOUCH

2200 Wind Cliff Drive, Eads, TN 38028 

Tel 901-696-8105, Email robinsonblackent@gmail.com

© 2025 AERobinson. Powered and secured by Wix

  • Linkedin
  • Spotify
  • Instagram
bottom of page